LOGIN
HOME
CATEGORIES
UPLOAD FILE
PRICING
HOUSE PLAN
ABOUT US
CONTACT US
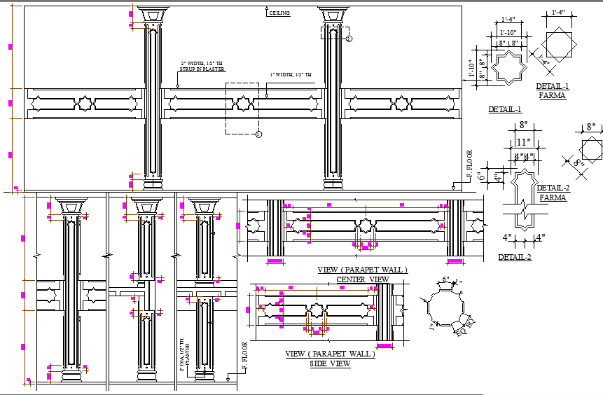
Column All Cutting Section Detail
Home
Categories
Structure
Beam And Lintel
Column All Cutting Section Detail
Uploaded by:
Wang
Fang
View Profile
View Profile
Description
Column All Cutting Section Detail Parapet wall, centre ciew, first floor side view, center cutting detail. strup in plaster.
File Type:
DWG
File Size:
230 KB
Category::
Structure
Sub Category::
Beam And Lintel
type:
Gold
Uploaded by:
Wang
Fang
View Profile
Download
Add to libary
find Latest
Related
Files