Architecture House Working Plan CAD Drawing DWG File
Description
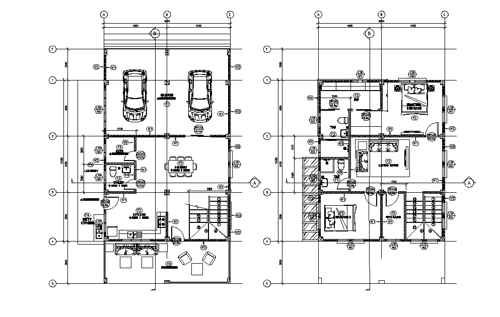
The architecture house ground floor and first floor working layout plan drawing that shows modular kitchen, dining area, 2 master bedrooms, living room, inside staircase and accommodate 2 big car parking porch area with all dimension detail. Thank you for downloading the AutoCAD file and other CAD program from our website.
Uploaded by:

