Office Building Layout Plan With Reflected Ceiling Plan Drawing DWG File
Description
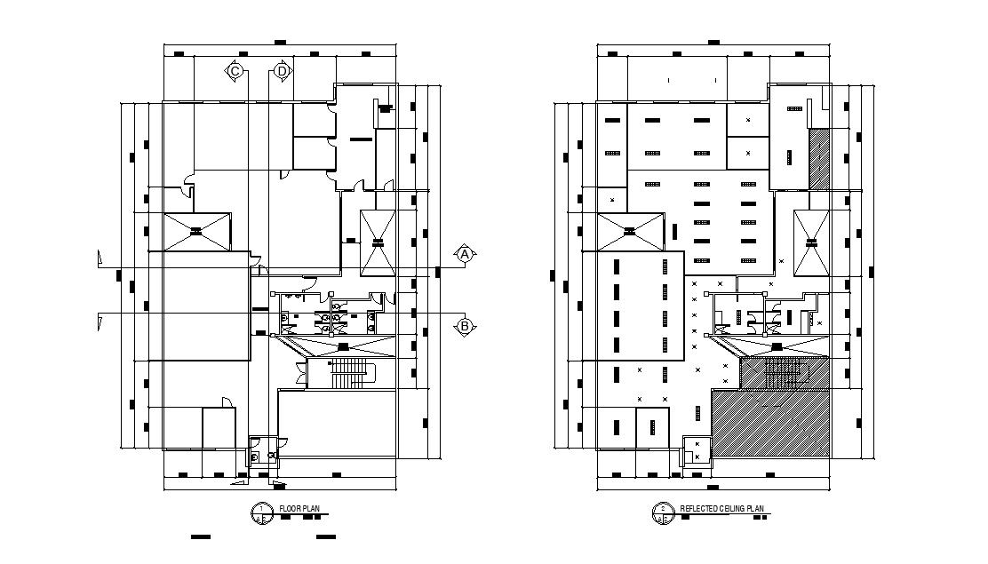
The architecture corporate office building layout plan CAD drawing shows reflected version of the ceiling plan design. its a various objects like sprinklers, smoke detectors, and electrical wiring fetching. also has additional drawing detail such as measurement and sanitary ware. Thank you for downloading the AutoCAD file and other CAD program from our website.
Uploaded by:

