Column Beam Section CAD Drawing DWG File
Description
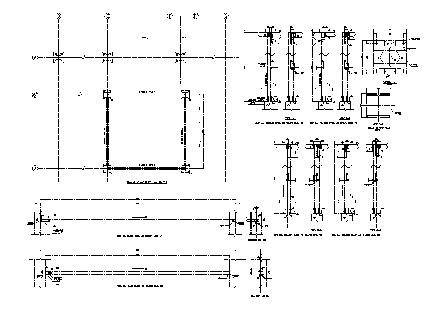
the RCC column beam section CAD drawing that shows all welding's are 6mm continuous fillet unless otherwise specified. reinforcement work includes Vertical main bar fabrication shall be conform to is 800.ll plates and structural steel material to conform. Thank you for downloading the AutoCAD file and other CAD program from our website.
Uploaded by:

