LOGIN
HOME
CATEGORIES
UPLOAD FILE
PRICING
HOUSE PLAN
ABOUT US
CONTACT US
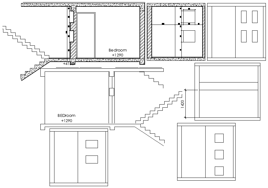
Bed room Elevation Design
Home
Categories
Interior Design
Bedroom Interiors
Bed room Elevation Design
Uploaded by:
Priyanka
Patel
View Profile
View Profile
Description
This Bed room design include the DWG file & elevation detail with structure detail & stair detail.
File Type:
DWG
File Size:
165 KB
Category::
Interior Design
Sub Category::
Bedroom Interiors
type:
Free
Uploaded by:
Priyanka
Patel
View Profile
Download
Add to libary
find Latest
Related
Files