25'X45' House Plan With Furniture Layout AutoCAD Drawing DWG File
Description
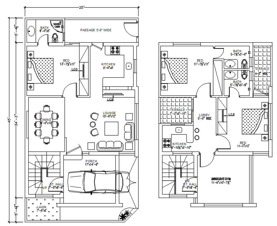
25'X45' AutoCAD house ground floor and first floor plan with furniture layout drawing, The total Plot area is 1125 SQFT which consist 3 bedrooms with an attached toilet, kitchen, dining room, living lounge, and car parking porch also has open terrace available on the first floor. The staircase is placed in outside of the house nearest to car parking place. Thank you for downloading the 2D AutoCAD DWG drawing file and other CAD program files from our website.
Uploaded by:

