LOGIN
HOME
CATEGORIES
UPLOAD FILE
PRICING
HOUSE PLAN
ABOUT US
CONTACT US
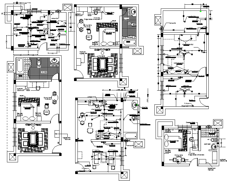
Simple House Lay-out With all detail
Home
Categories
Architecture
House Plan
Simple House Lay-out With all detail
Uploaded by:
Priyanka
Patel
View Profile
View Profile
Description
Simple House Lay-out With all detail In Electric Lay-out, furniture lay-out, bed room detail, living room detail with wash area.
File Type:
DWG
File Size:
1.1 MB
Category::
Architecture
Sub Category::
House Plan
type:
Gold
Uploaded by:
Priyanka
Patel
View Profile
Download
Add to libary
find Latest
Related
Files