Conference Building Section DWG File for AutoCAD Use
Description
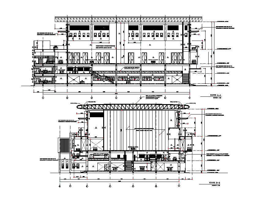
The conference building section CAD drawing that shows floor level building structure design, magnesium silicate board, 9 mm thick, welded with PU glue, painted by plastic On the steel frame, floor deck level, awning, magnesium silicate board, 9 mm thick, filled with PU glue, painted by plastic On the iron beams and soundproof sliding wall Has a soundproof value of not less than STC.53 according to ASTM 90. Thank you for downloading AutoCAD drawing DWG file from the our
Uploaded by:

