LOGIN
HOME
CATEGORIES
UPLOAD FILE
PRICING
HOUSE PLAN
ABOUT US
CONTACT US
Commercial Building Parking Plan
Home
Categories
Architecture
Corporate Building
Commercial Building Parking Plan
Uploaded by:
Komal
View Profile
View Profile
Description
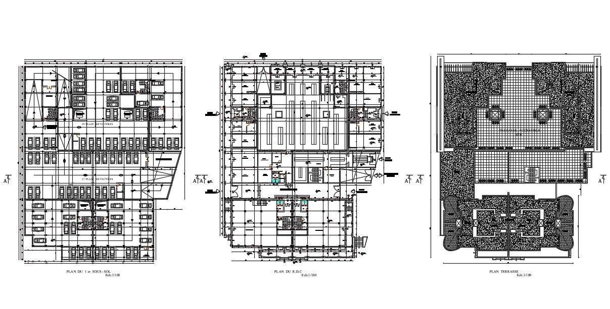
Commercial Building Parking Plan DWG file. the architecture layout plan of the terrace floor plan and sample floor plan and parking plan with dimension details.
File Type:
DWG
File Size:
1.4 MB
Category::
Architecture
Sub Category::
Corporate Building
type:
Gold
Uploaded by:
Komal
View Profile
Download
Add to libary
find Latest
Related
Files