Hostel Boiling Section And Elevation Design Download DWG File
Description
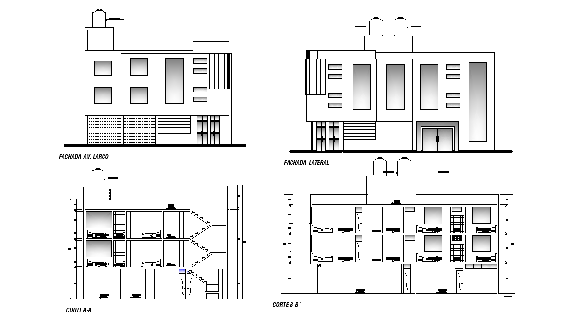
The hostel building front and side view section drawing and elevation design that shows G+2 storey floor level building model design which consist the shape of external surface door window marking, height of building and finish of the building after completion visualization image. Thank you for downloading the AutoCAD file and other CAD program from our website.
Uploaded by:

