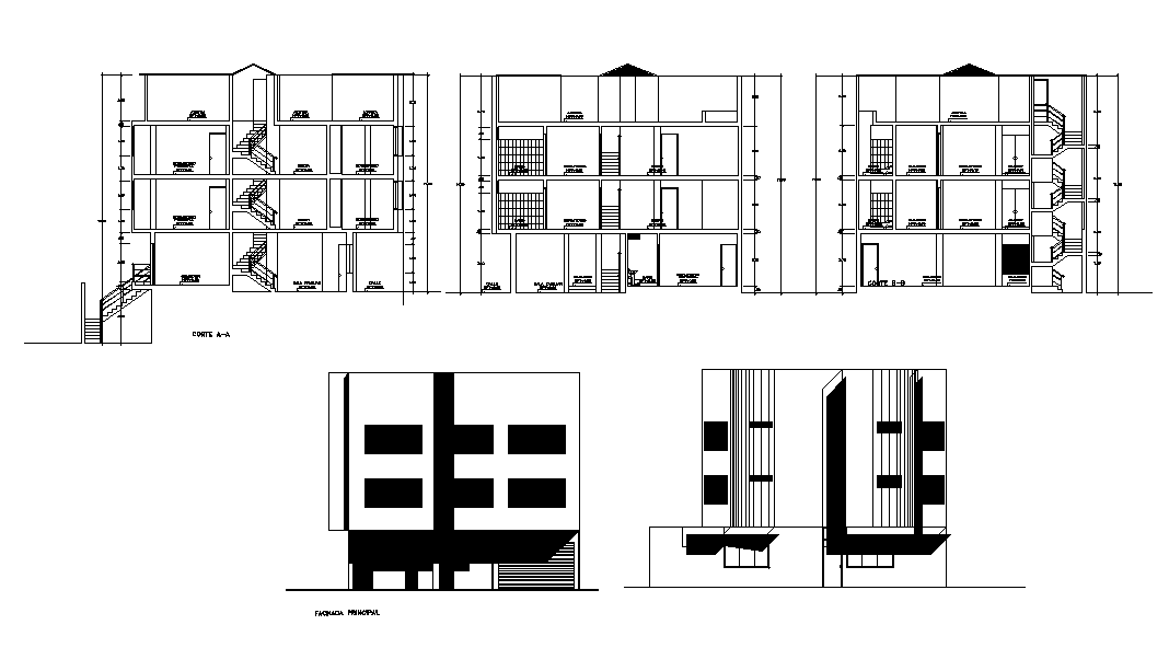
Section and elevation of typical floor plan of house plan is given in this 2D Autocad DWG drawing file. Download the Autocad file.
Description
Section and elevation of typical floor plan of house plan is given in this 2D Autocad DWG drawing file. The height of the building is 14m. The length and breadth of the house plan is 12m and 15m respectively. 4 bedrooms with attached toilet, kitchen, dining, study room, living hall, patio, metal railing and other details are given in this drawing. For more details download the 2D AutoCAD DWG drawing file. Thank you for downloading the 2D AutoCAD DWG drawing file and other CAD program files from our website.
Uploaded by:

