Interior design of kitchen detail drawing
Description
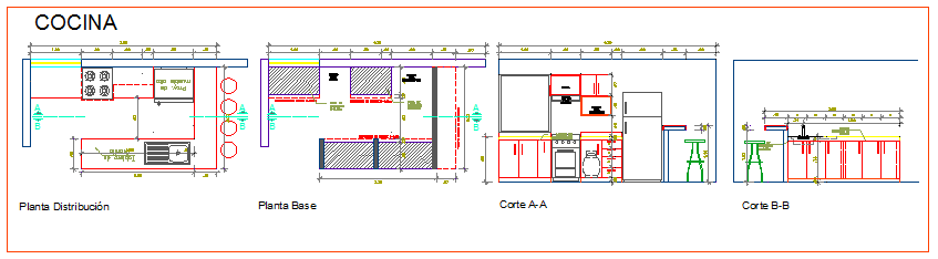
This is a Interior design of kitchen detail drawing with furniture detail and all side section drawing in this auto cad file.
Uploaded by:
zalak
prajapati

