Hospital Third Floor Plan AutoCAD Drawing Download DWG File
Description
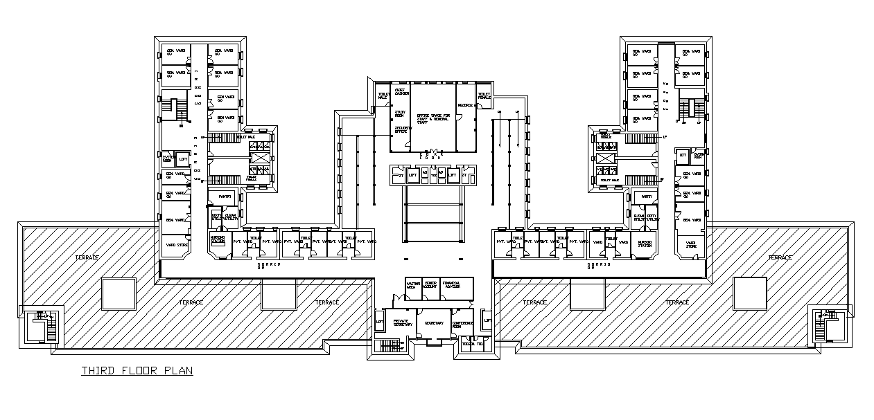
The hospital third floor plan AutoCAD drawing which includes pantry, sub waiting area, general ward, special ward, nursing station, control room, private secretary, conference room, office space for staff & general staff, study room and open terrace detail dwg file. Thank you for downloading the AutoCAD file and other CAD program files from our website.
Uploaded by:

