Commercial Office Plan With Auditorium CAD Drawing Download DWG File
Description
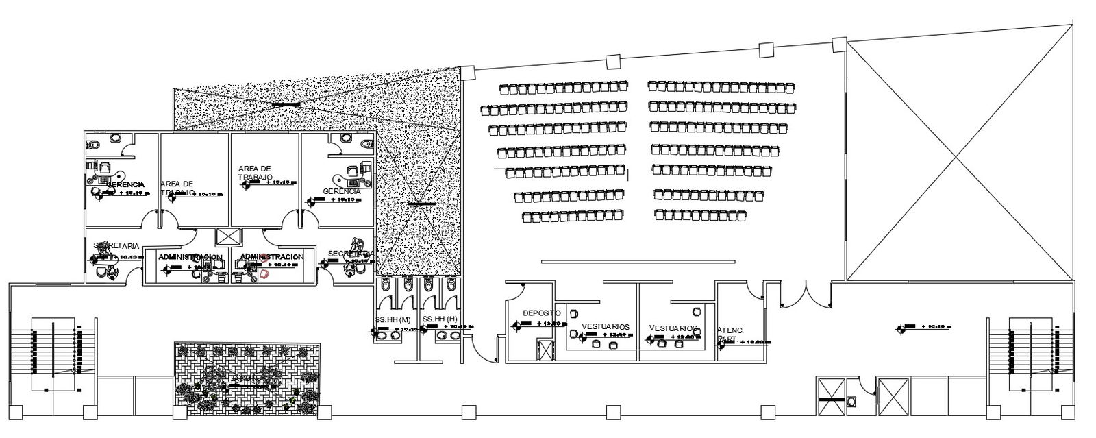
The commercial office building layout plan CAD drawing that shows administration office cabinet, admin office, wide long gallery, 2 staircase, lift, toilet, and wide auditorium hall for minimum 50 person seating capacity with all furniture design in dwg file. For more details download the AutoCAD drawing file. Thank you for downloading the AutoCAD drawing file and other CAD program files from our website.
Uploaded by:

