Corporate Office Building Floor Plan With Furniture Layout Drawing DWG File
Description
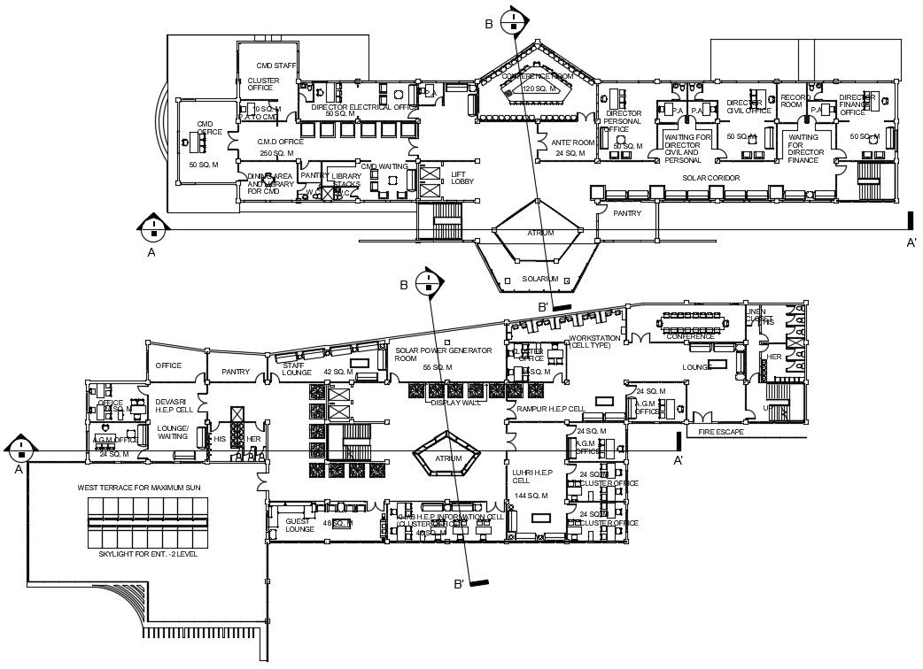
The architecture corporate office building floor plan CAD drawing which includes total coverage area 1225 square meter in entrance ground floor that shows working station, pantry, store room, cluster office, setting informal meeting, conference room, office cabin, cafeteria, lounge area and finance admin office with all furniture detail. Thank you for downloading the Autocad files and other CAD program files from our website.
Uploaded by:
