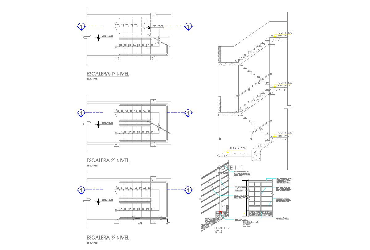
Detail of stair and railing design and detail in autocad dwg files

Detail of stair and railing design and detail in autocad dwg files
Profile

Uploaded by:

K.H.J

Jani

Description
Detail of stair and railing design and detail in autocad dwg files include plan elevations sections and various type of constructions detail.
Profile

Uploaded by:

K.H.J

Jani

find Latest

Related Files

WhatsApp Chat