50X30 Feet 2 BHK House Ground Floor Plan Download DWG File
Description
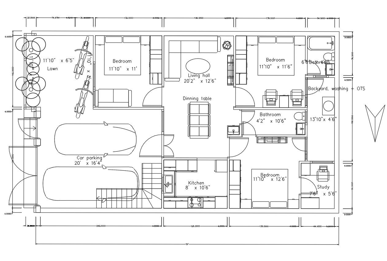
The architecture house ground floor plan AutoCAD drawing that shows 50'X30' plot size with all dimension and measurement detail. there are 2 bedrooms 11'X12', kitchen, living hall, study room, front side lawn and car parking porch detail in dwg file. also has all furniture arrangement layout plan. Thank you for downloading the Autocad drawing file and other CAD program files from our website.
Uploaded by:

