1500 Square Feet House Layout Plan AutoCAD Drawing DWG File
Description
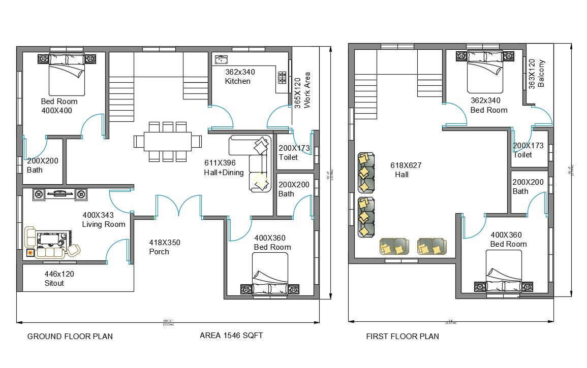
The residence architecture house-ground floor and first floor layout plan CAD drawing includes 1500 square feet plot size which consists 4 bedrooms with an attached toilet, living room, kitchen, dining area, hall, inside staircase and porch area with all furniture layout and measurement detail in dwg file. Thank you for downloading the AutoCAD drawing file and other CAD program files from our website.
Uploaded by:
