715sqft Ground Floor And 410sqft First Floor Plan 2D Cad File.
Description
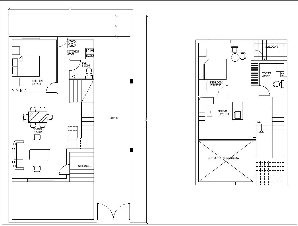
715sqft Ground Floor And 410sqft First Floor Plan 2D Cad File. This plan consists of a double-story residence with two bedrooms. A pergolas verandah greets one. We step into the big hall which is the formal drawing area, the dining area, and the circulation area. Segregation of spaces is achieved by means of different volumes. The drawing room gets a pitchy roof double-height, thus emphasizing its formality vis-a-vis the other spaces. the kitchen and bedroom occupy the rear portion. upstairs, the sitting area overlooks the drawing-room below. The master bedroom gets its own balcony.
the form is a combination of the flat slab and pyramid roof. The walls are finished in fire bricks.
Uploaded by:
apurva
munet

