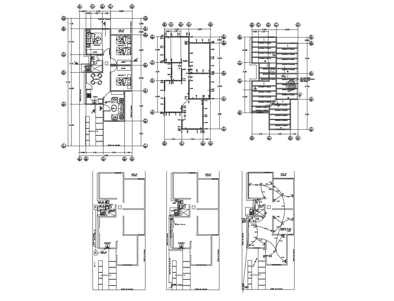
Floor plan of house 7.00mtr x 17.00mtr with detail dimension in dwg file
Description
Floor plan of house 7.00mtr x 17.00mtr with detail dimension in dwg file which provides detail of hall, bedroom, kitchen with dining area, bathroom, toilet, etc it also gives detail of electric layout plan, sanitary layout plan.

Uploaded by:
Eiz
Luna

