LOGIN
HOME
CATEGORIES
UPLOAD FILE
PRICING
HOUSE PLAN
ABOUT US
CONTACT US
House plan
Home
Categories
Architecture
House Plan
House plan
Uploaded by:
apurva
munet
View Profile
View Profile
Description
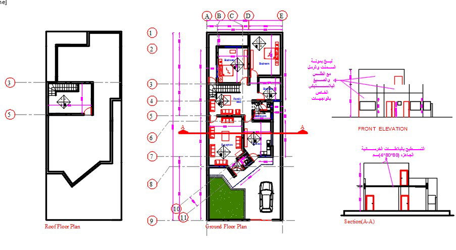
Here is the autocad dwg of house plan,it consists of ground floor plan and roof plan of house,elevation of house and sections of house.
File Type:
DWG
File Size:
134 KB
Category::
Architecture
Sub Category::
House Plan
type:
Gold
Uploaded by:
apurva
munet
View Profile
Download
Add to libary
find Latest
Related
Files