LOGIN
HOME
CATEGORIES
UPLOAD FILE
PRICING
HOUSE PLAN
ABOUT US
CONTACT US
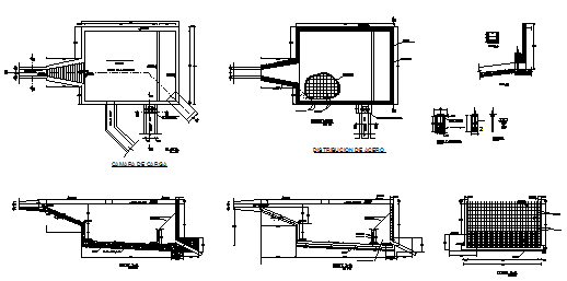
Water loading chamber water taking design drawing
Home
Categories
Details
Construction Details
Water loading chamber water taking design drawing
Uploaded by:
zalak
prajapati
View Profile
View Profile
Description
Here the Water loading chamber water taking design drawing with section design drawing with detailing in this auto cad file.
File Type:
DWG
File Size:
541 KB
Category::
Details
Sub Category::
Construction Details
type:
Gold
Uploaded by:
zalak
prajapati
View Profile
Download
Add to libary
find Latest
Related
Files