LOGIN
HOME
CATEGORIES
UPLOAD FILE
PRICING
HOUSE PLAN
ABOUT US
CONTACT US
Structural beam plan autocad file
Home
Categories
Details
Construction Details
Structural beam plan autocad file
Uploaded by:
Dhara
View Profile
View Profile
Description
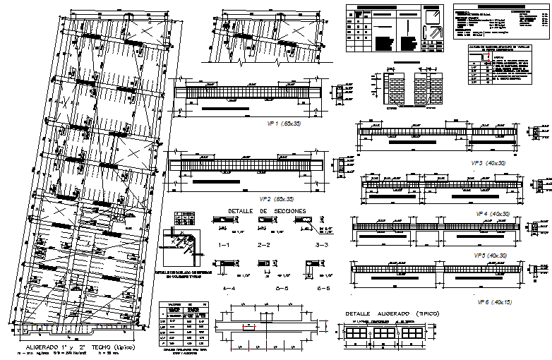
Structural beam plan autocad file, reinforcement detail, column detail, bolt nut detail, dimension detail, naming detail, brick wall detail, etc.
File Type:
DWG
File Size:
2.3 MB
Category::
Details
Sub Category::
Construction Details
type:
Gold
Uploaded by:
Dhara
View Profile
Download
Add to libary
find Latest
Related
Files