LOGIN
HOME
CATEGORIES
UPLOAD FILE
PRICING
HOUSE PLAN
ABOUT US
CONTACT US
Hospital
Home
Categories
Architecture
Hospital Projects
Hospital
Uploaded by:
viddhi
chajjed
View Profile
View Profile
Description
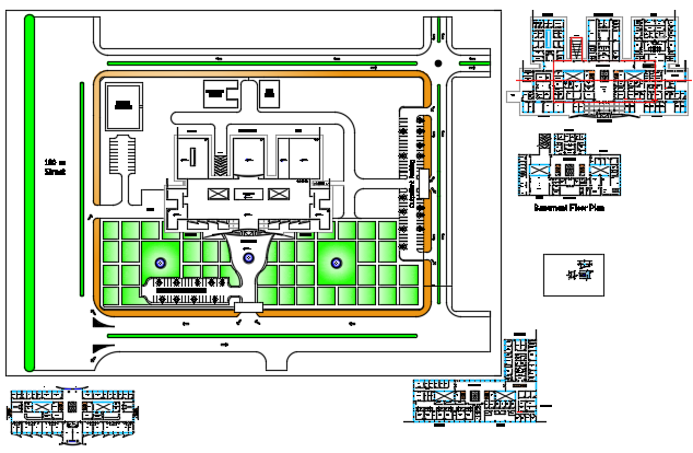
The architecture layout plan of ground floor plan has a welcome entry, reception and consultancy room, also have detailing along of furniture detailing.
File Type:
DWG
File Size:
569 KB
Category::
Architecture
Sub Category::
Hospital Projects
type:
Free
Uploaded by:
viddhi
chajjed
View Profile
Download
Add to libary
find Latest
Related
Files