7x10m architecture 3bhk house plan dimension detail drawing
Description
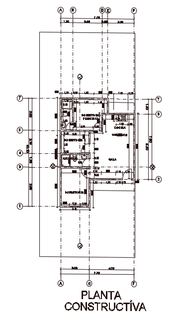
7x10m architecture 3bhk house plan dimension detail drawing is given in this model. This is a single story house building. The dimension of master bedroom is 3.5x2.85m. The dimension kid’s bedroom is 2.85x2m. The dimension of kid’s bedroom is 2.85x3.5m. The dimension of the common bathroom is 2.4m and 1.15m. The dimension of the attached bathroom is 2.85m and 1.15m.
Uploaded by:
