LOGIN
HOME
CATEGORIES
UPLOAD FILE
PRICING
HOUSE PLAN
ABOUT US
CONTACT US
Engineering Offices
Home
Categories
Architecture
Corporate Building
Engineering Offices
Uploaded by:
View Profile
View Profile
Description
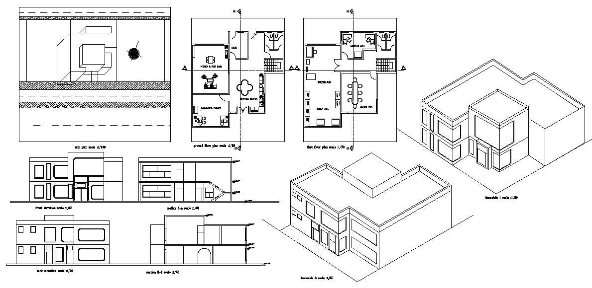
Engineering Office's axonometric plans,architecture layout with detailing, sectional plan, structure plan, constructional plan, sectional elevation of individual floor
File Type:
DWG
File Size:
305 KB
Category::
Architecture
Sub Category::
Corporate Building
type:
Gold
Uploaded by:
View Profile
Download
Add to libary
find Latest
Related
Files