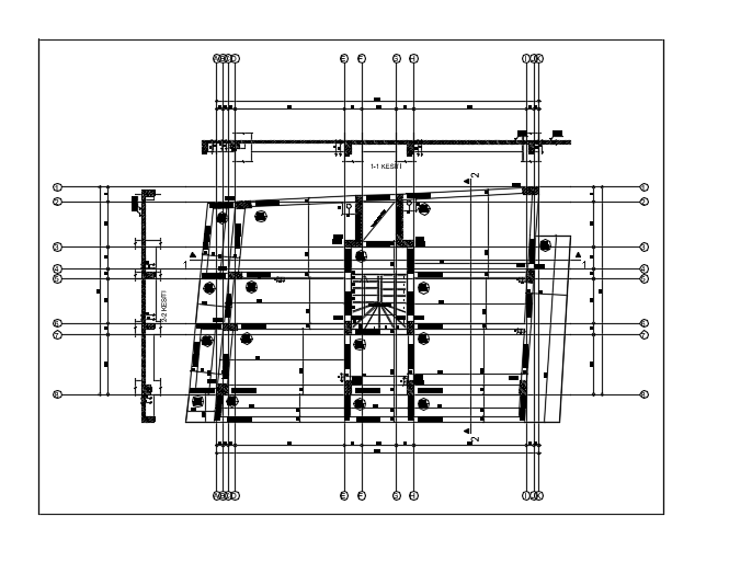
15x10m apartment beam and column dimension detail drawing

15x10m apartment beam and column dimension detail drawing
Profile

Uploaded by:

Meera

Description

15x10m apartment beam and column dimension detail drawing is given. Each column and beam is noted by the numbers.

 

Profile

Uploaded by:

Meera

find Latest

Related Files

WhatsApp Chat