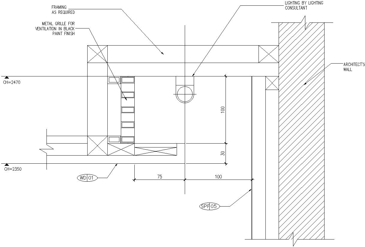
Ceiling core light section drawing.
Description
This Architectural Drawing is AutoCAD 2d drawing of Ceiling core light section drawing. Though it is a simple technique of lighting, cove lights are preferred for the visual edge that they grant to the spaces. If you wish to have soft, diffused illumination across your living room, hallways, porch or even bedroom, then cove lighting should be one of the options that you must consider. There are a few different types of lighting that can be used in cove systems. Some of the most popular options include LED lights, fluorescent lights, and tungsten lights. LED: LED lights are becoming increasingly popular because they are energy-efficient and long-lasting. For more details and information download the drawing file.

Uploaded by:
Eiz
Luna

