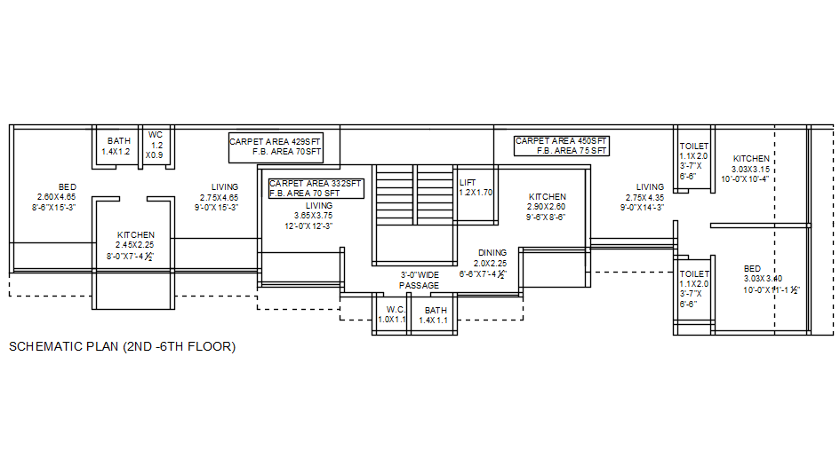
Schematic plan of 2nd and 6th floor in detail AutoCAD drawing, dwg file, CAD file
Description
This architectural drawing is Schematic plan of 2nd and 6th floor in detail AutoCAD drawing, dwg file, CAD file. In this drawing there were passage, common toilet-bathroom, dining area, living room, kitchen, bedroom, lift section, staircase section, etc. are given with details. For more details and information download the drawing file.
Uploaded by:
viddhi
chajjed

