2nd floor plan of telemetering in AutoCAD 2D drawing, dwg file, CAD file
Description
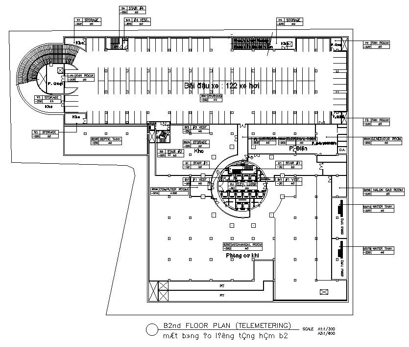
This architectural drawing is the 2nd-floor plan of telemetering in AutoCAD 2D drawing, dwg file, and CAD file. As in the aforementioned example, telemetering entails the transmission of data across long distances. It can also be done over short distances, as in the case of monitoring activities on a gas turbine's revolving shaft. For more details and information download the drawing file. Thank you for visiting our website cadbull.com.
File Type:
DWG
File Size:
258 KB
Category::
Electrical
Sub Category::
Electrical Automation Systems
type:
Gold
Uploaded by:
viddhi
chajjed

