Back view of incinerator plant with dimensions and details in AutoCAD 2D drawing, CAD file, dwg file
Description
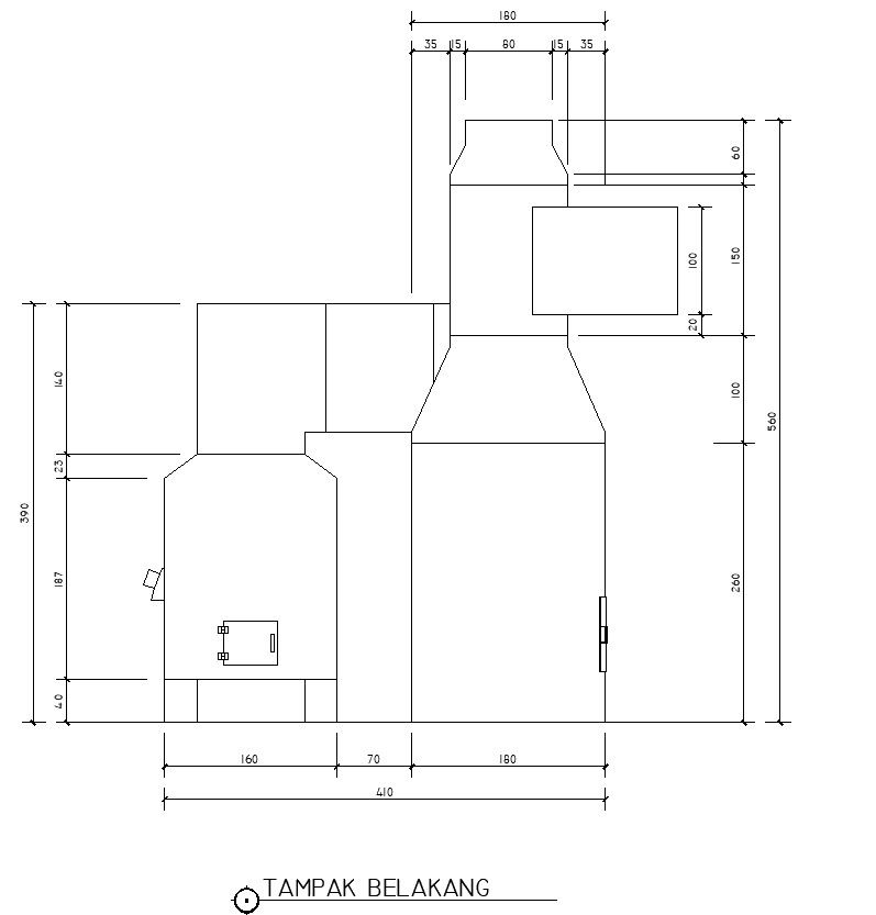
This architectural drawing is a Back view of the incinerator plant with dimensions and details in AutoCAD 2D drawing, CAD file, and dwg file. Waste-to-energy plants are another name for incineration facilities. The heat from combustion produces superheated steam in boilers, which powers turbogenerators to create electricity. Vehicles that collect refuse to convey incinerable garbage to WTE plants. For more details and information download the drawing file. Thank you for visiting our website cadbull.com.
File Type:
DWG
File Size:
8.8 MB
Category::
Mechanical and Machinery
Sub Category::
Factory Machinery
type:
Gold
Uploaded by:
viddhi
chajjed

