LOGIN
HOME
CATEGORIES
UPLOAD FILE
PRICING
HOUSE PLAN
ABOUT US
CONTACT US
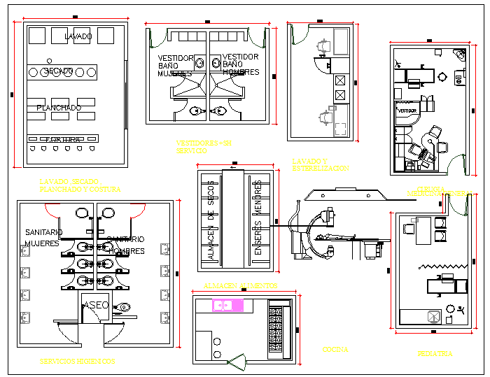
Hospital plan and Furniture Detail
Home
Categories
Architecture
Hospital Projects
Hospital plan and Furniture Detail
Uploaded by:
K.H.J
Jani
View Profile
View Profile
Description
Hospital plan and Furniture Detail dwg file. The architecture layout plan with structure detailing and furniture plan in autocad format.
File Type:
DWG
File Size:
560 KB
Category::
Architecture
Sub Category::
Hospital Projects
type:
Gold
Uploaded by:
K.H.J
Jani
View Profile
Download
Add to libary
find Latest
Related
Files