Detailed Floor Plan Layout for 4-Storey Office Building In AutoCAD File
Description
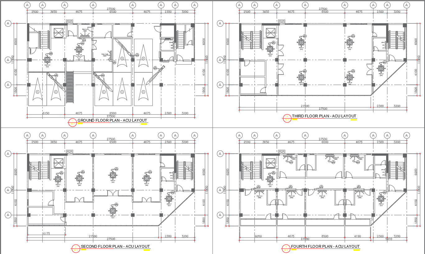
Explore the detailed floor plan layout for a 4-storey office building through this user-friendly AutoCAD file. The Ground Floor Plan Layout provides a comprehensive view of the main level, showcasing strategically arranged spaces for optimal functionality. Move up to the Second Floor Plan Layout to discover intelligently designed office areas, and further ascend to the Third Floor Plan Layout, where additional office spaces seamlessly integrate. Finally, reach the Fourth Floor Plan Layout, revealing the topmost level's thoughtfully organised offices. This AutoCAD file contains CAD drawings meticulously crafted to aid in visualising and planning the layout effectively. With each floor thoughtfully outlined in this DWG file, it becomes an invaluable resource for architects, designers, and anyone involved in 4-storey office construction projects. Download this CAD file to access a detailed floor plan that simplifies the planning process, providing a clear and concise representation of the layout for enhanced understanding and execution.
Uploaded by:
K.H.J
Jani

