VICINITY MAP WITH G PLUS ONE AUTOCAD DWG DRAWING .
Description
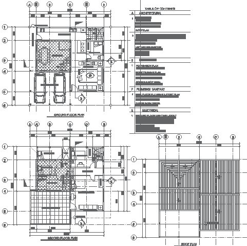
Explore an extensive AutoCAD DWG drawing showcasing a vicinity map with a G plus one structure, including detailed layouts for the ground floor, first floor, and roof floor. This comprehensive drawing encompasses essential elements such as furniture layout, structural layout, and detailed drawings, providing architects and planners with a comprehensive overview of the project. With a focus on accuracy and detail, this drawing offers valuable insights into the spatial organization and structural design of the building. Accessible as CAD files, it serves as an indispensable tool for architects, engineers, and developers involved in the construction process, ensuring efficient planning and execution of the project.

Uploaded by:
Liam
White

