Architecture drawing off evidence collection block of sindh forensic science laboratory detail dwg autocad drawing .
Description
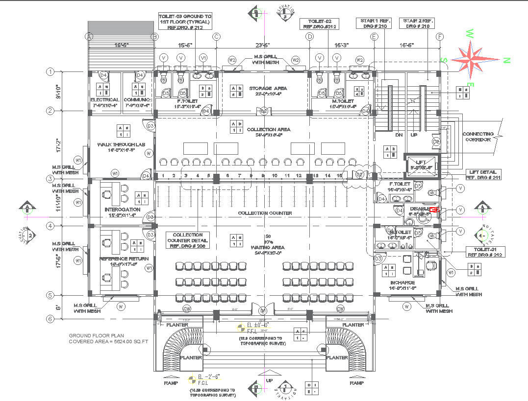
Explore the intricate details of the evidence collection block at Sindh Forensic Science Laboratory through this comprehensive AutoCAD DWG drawing. Featuring meticulously crafted plans for the basement, ground floor, and first floor, as well as detailed layouts for false ceilings, this drawing provides a comprehensive view of the architectural design. Detailed front and back elevations, along with a top view, offer valuable insights into the external appearance and spatial organization of the building. Ideal for architects, engineers, and designers, this drawing serves as a valuable resource for planning and executing construction projects with precision and accuracy.

Uploaded by:
Liam
White

