Typical floor plan for living hostel with section elevation and other detail dwg autocad drawing .
Description
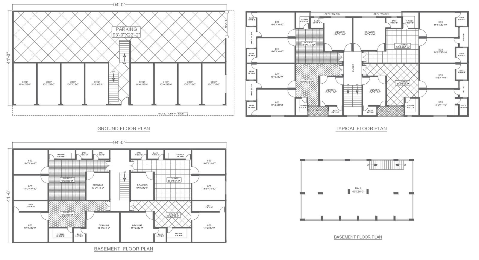
Explore our meticulously designed Autocad DWG drawing showcasing a typical floor plan for a vibrant living hostel. This detailed drawing provides a comprehensive layout, complete with sectional elevations and other essential details. From plot analysis to furniture arrangement, every aspect is meticulously documented to ensure optimal space utilization and functionality. Whether you're an architect, designer, or developer, this drawing offers valuable insights into space planning, floor layout, and architectural elements. Seamlessly navigate through elevation views, section plans, and other details to visualize and execute your hostel design with precision and clarity. Accessible in AutoCAD format, it's compatible with various design software for enhanced convenience and flexibility. Whether you're planning a new hostel project or seeking inspiration for renovations, this drawing serves as a valuable resource for creating inviting and functional living spaces.

Uploaded by:
Liam
White

