Bungalow design with guard room and open area with elevation and section detail dwg autocad drawing .
Description
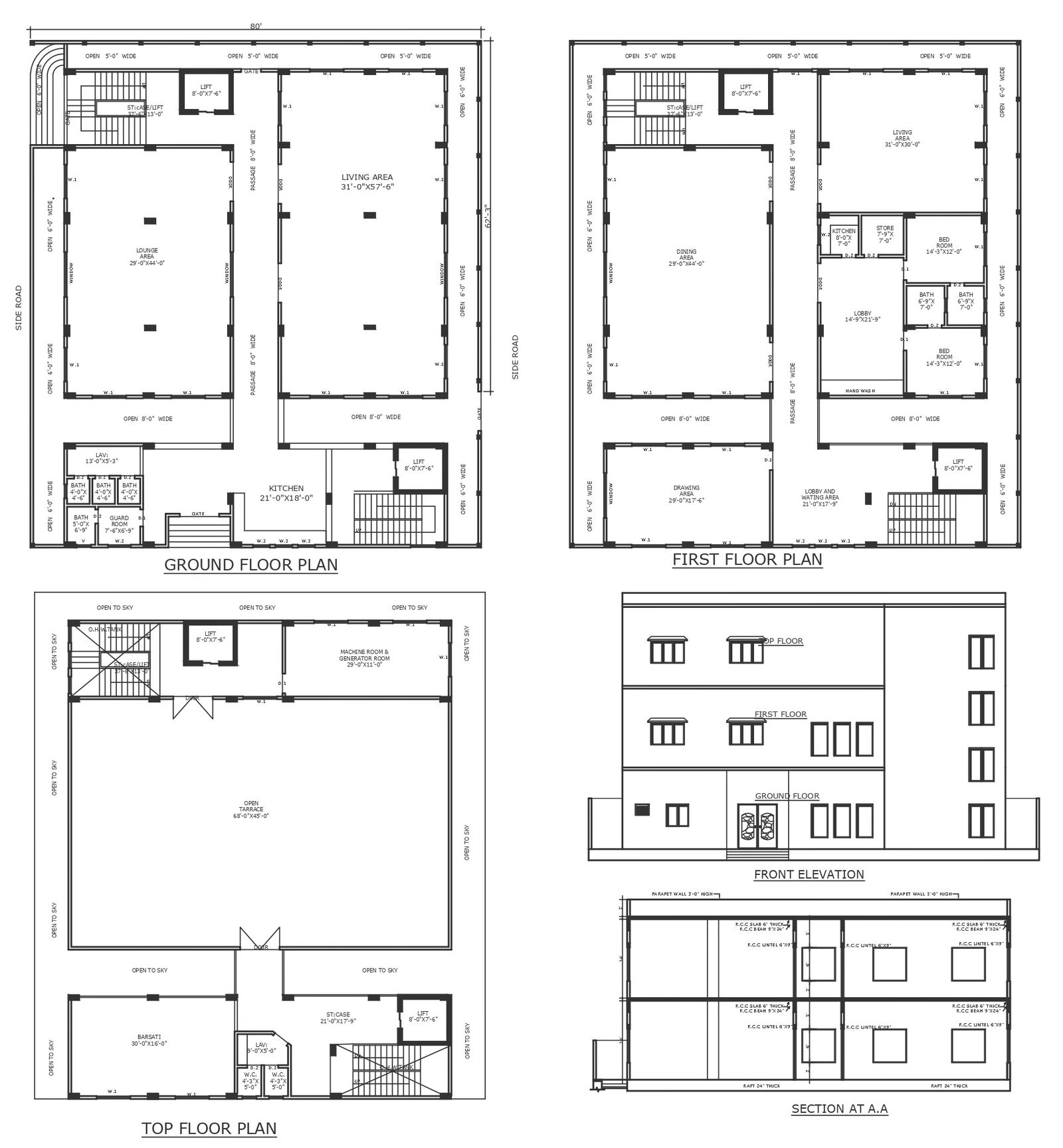
Our DWG Autocad drawing showcases a thoughtfully designed bungalow with a guard room and ample open space, complemented by detailed elevation and section views. With meticulous attention to plot detail and site analysis, this drawing offers a comprehensive overview of the architectural layout. From furniture placement to façade design, every aspect is meticulously documented to ensure optimal functionality and aesthetic appeal. Whether you're planning a new construction project or seeking inspiration for a residential development, our SEO-friendly drawing provides valuable insights into space planning and architectural design. Accessible as an Autocad file, it serves as a versatile resource for architects, designers, and developers looking to create stunning bungalow designs tailored to modern living standards. Elevate your next project with our meticulously crafted drawing, optimized for precision and creativity.

Uploaded by:
Liam
White

