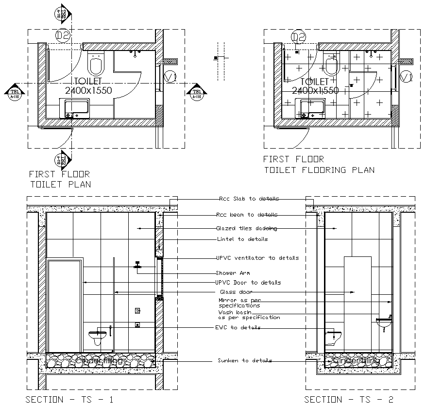
Toilet design with flooring detail in plan and sections DWG AutoCAD drawing
Description
Explore the intricacies of restroom design with our detailed DWG AutoCAD drawing showcasing a comprehensive plan and section details of a toilet, including flooring specifications. This CAD file provides precise 2D drawings, meticulously outlining the layout and design elements of the restroom, ensuring seamless integration into your architectural plans. Delve into the specifics of our AutoCAD file, offering comprehensive measurements and detailed views for effortless implementation. Whether you're designing a residential bathroom or a commercial restroom facility, our DWG drawing caters to your project's unique requirements for functionality and aesthetics. Elevate your design process with our curated selection of CAD drawings, allowing you to visualize and execute every detail with precision and ease. From optimizing space utilization to selecting appropriate flooring materials, our DWG file provides the blueprint for creating a stylish and functional toilet space. Explore our AutoCAD files today and transform your restroom designs with our expertly detailed drawings.

Uploaded by:
Fernando
Zapata

