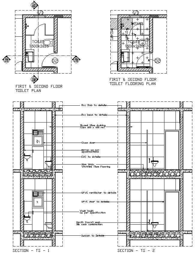
First and second floor toilet plan and section detail DWG AutoCAD drawing
Description
Explore the convenience and functionality of our meticulously crafted DWG AutoCAD drawing showcasing the first and second floor toilet plan and section detail. This CAD file offers precise 2D drawings, meticulously outlining the layout and specifications of the toilet facilities on both floors. Delve into the specifics of our AutoCAD file, providing comprehensive measurements and detailed views for effortless implementation into your architectural plans. Whether you're designing a residential or commercial building, our DWG drawing caters to your project's unique requirements for efficient and well-designed restroom facilities. Elevate your design process with our curated selection of CAD drawings, allowing you to visualize and execute every detail with precision and ease. From optimizing space utilization to ensuring accessibility, our DWG file provides the blueprint for incorporating functional toilet facilities into your building design. Explore our AutoCAD files today and enhance your architectural projects with our expertly detailed designs.

Uploaded by:
Fernando
Zapata

