Detail of Marine Type Propeller Detail Section DWG AutoCAD file
Description
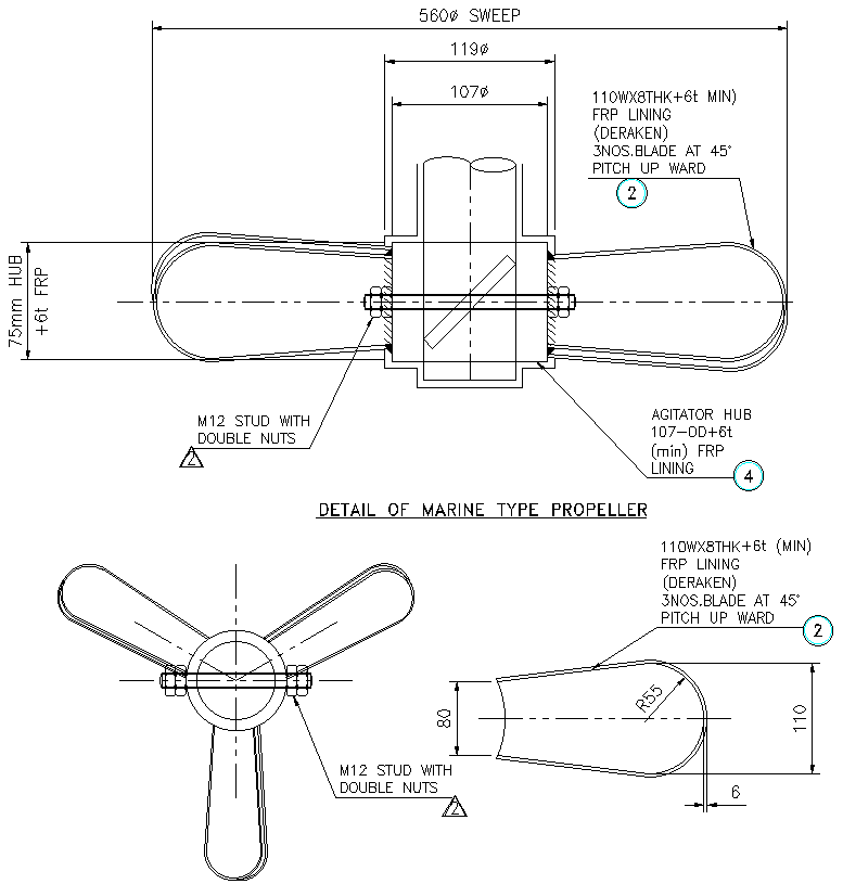
Explore the intricate details of a Marine Type Propeller with our comprehensive AutoCAD file. This DWG file offers a detailed section view, providing valuable insights into the design and structure of marine propellers. Ideal for engineers, architects, and designers, this CAD drawing presents a 2D depiction with precise dimensions and technical specifications. Dive into the world of naval engineering and propulsion systems with our meticulously crafted DWG file, perfect for analysis, modification, or educational purposes. Discover how AutoCAD files can streamline your design process and enhance project accuracy. Download our CAD file today to unlock the potential of detailed marine propeller designs in your next project.
File Type:
DWG
File Size:
408 KB
Category::
Mechanical and Machinery
Sub Category::
Factory Machinery
type:
Gold

Uploaded by:
Eiz
Luna

