Residential Building Layout with Ground Floor Shop and Godown AutoCAD DWG File
Description
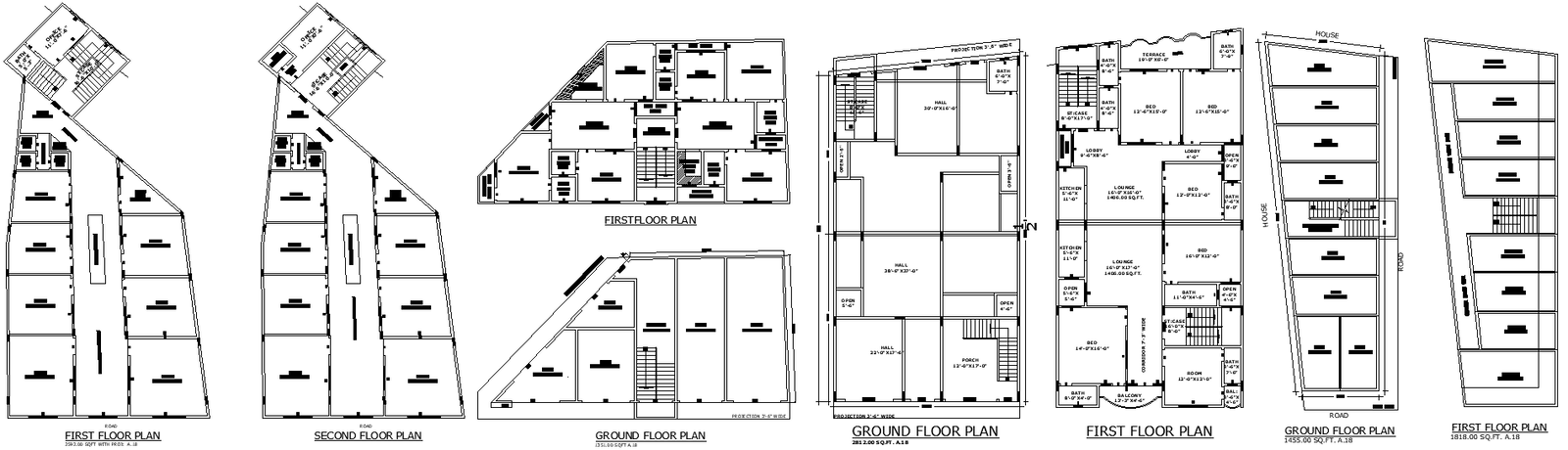
Get a complete Residential Building Layout with Ground Floor Shop and Godown, which is available in the DWG file format. It is a four-house-plan-type comprehensive file with detailed dimensions for each plan according to the needs. One will find the design with spacious halls, well-organized kitchens, and different room layouts according to one's requirements. The plans have detailed bathrooms to form the perfect blend of functionality and comfort. This drawing is available in DWG format and has several layout options that would be ideal for both architects and designers, or home owners in general, who are looking for diverse, practical residential building designs. The added functionality of the ground floor shop and godown layout makes the building more functional. Whether one wants to simply design a new home or take an existing one for reference to renovate it, this AutoCAD DWG file combines all the elements that one needs to design a balanced living and working place. Get instant access to the detailed house plans by downloading now.

Uploaded by:
Eiz
Luna

