Two Storey Residential Building Floor Plan With Dimensions DWG File
Description
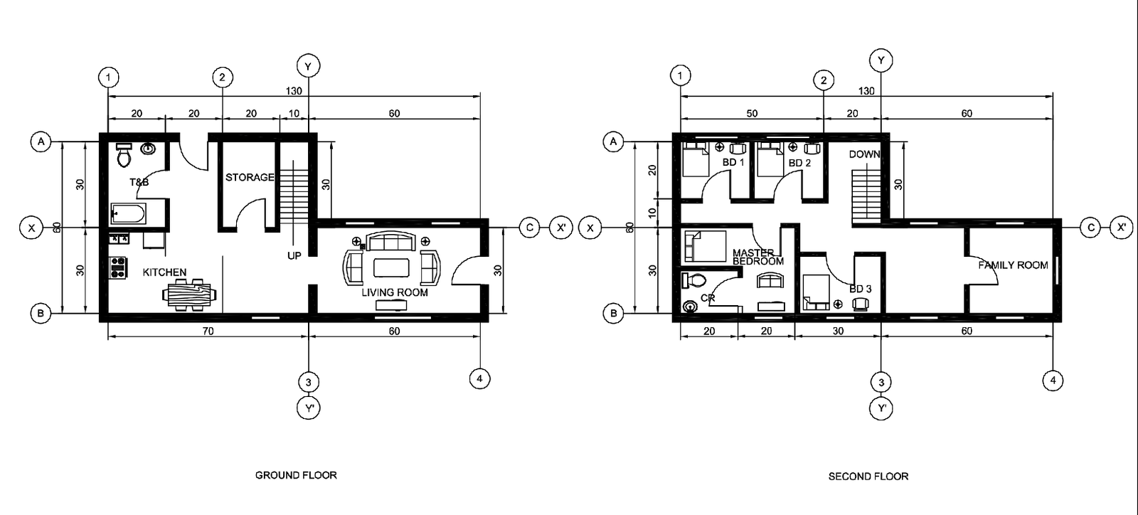
This AutoCAD DWG file illustrates a professionally drafted two-storey residential building floor plan with clearly defined spatial organization and precise measurements. The drawing includes separate ground floor and second floor plans, each presented with clear wall thicknesses, room labels, and linear dimensions. The ground floor layout shows a living room, kitchen, toilet and bath, storage area, and stair placement arranged for functional circulation. Dimension markings such as 20, 30, 60, 70, and 130 units are consistently applied to support accurate scaling, planning, and on-site coordination. Grid lines, reference axes, and section indicators improve technical clarity and construction understanding.
The second floor plan focuses on private residential spaces, including the master bedroom, additional bedrooms, family room, common CR, and stair landing. Room proportions, internal partitions, and alignment with the ground floor structure are carefully coordinated to maintain structural and functional continuity. This drawing supports architectural planning, interior space allocation, and construction documentation workflows. Provided in editable AutoCAD DWG format, the file is suitable for architects, civil engineers, interior designers, and builders who require reliable residential planning references with clear measurements and layout logic for professional project use.

Uploaded by:
Liam
White

