4levels house dwg

4levels house dwg
Profile

Uploaded by:

zalak

prajapati

Description
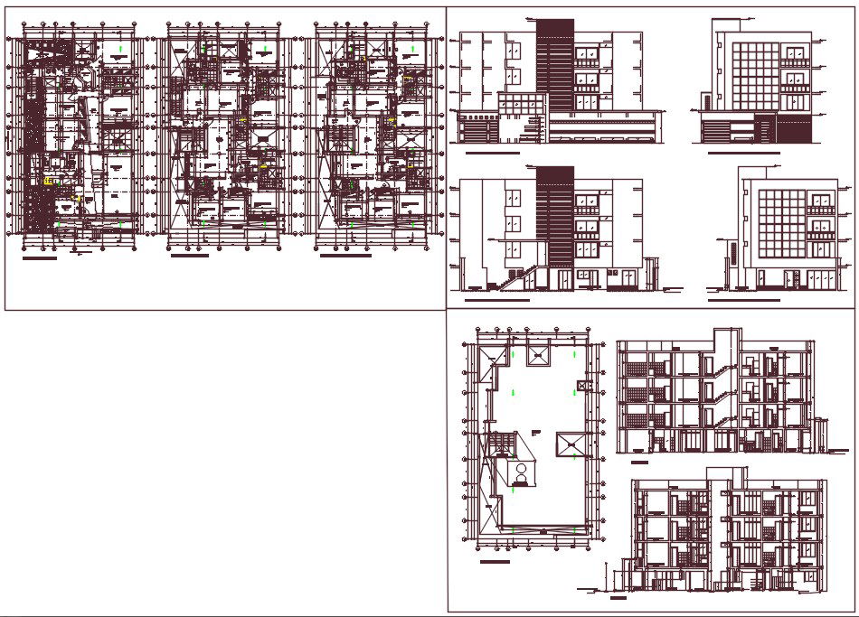
Here the autoca file of 4 levels house design drawing file.with plan view in detail like bedroom , hall , kitchen ,laundry area and front elevation and cut elevation drwaing detail.
Profile

Uploaded by:

zalak

prajapati

find Latest

Related Files

WhatsApp Chat