LOGIN
HOME
CATEGORIES
UPLOAD FILE
PRICING
HOUSE PLAN
ABOUT US
CONTACT US
2 Wall joint section plan with detailing dwg file
Home
Categories
Dwg Cad Blocks
Wall And Railings
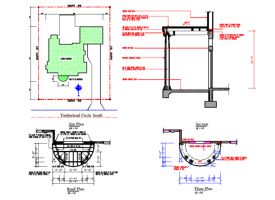
2 Wall joint section plan with detailing dwg file
Uploaded by:
Komal
View Profile
View Profile
Description
2 Wall joint section plan with detailing dwg file. find here the 2 wall joint section plan, roof plan, floor plan and site plan in autocad format.
File Type:
DWG
File Size:
653 KB
Category::
Dwg Cad Blocks
Sub Category::
Wall And Railings
type:
Free
Uploaded by:
Komal
View Profile
Download
Add to libary
find Latest
Related
Files