LOGIN
HOME
CATEGORIES
UPLOAD FILE
PRICING
HOUSE PLAN
ABOUT US
CONTACT US
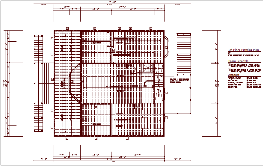
Beam schedule plan details dwg files
Home
Categories
Details
Construction Details
Beam schedule plan details dwg files
Uploaded by:
Dhara
View Profile
View Profile
Description
Beam schedule plan details dwg files, Beam schedule plan details and naming beam details, anchors bars in 12mm, 10mm, 8mm details, dimension detail in beam plan details
File Type:
DWG
File Size:
659 KB
Category::
Details
Sub Category::
Construction Details
type:
Gold
Uploaded by:
Dhara
View Profile
Download
Add to libary
find Latest
Related
Files