Water reservoir tank architecture project dwg file
Description
Water reservoir tank architecture project dwg file.
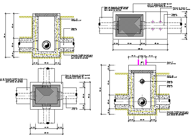
Water reservoir tank architecture project that includes a detailed view of Concrete Fc for the construction of tanquillas for service works, Pipeline, Reinforcing steel, Concrete Base Fc for the construction of ditches for works of service and much more of water tank construction details.
Uploaded by:

