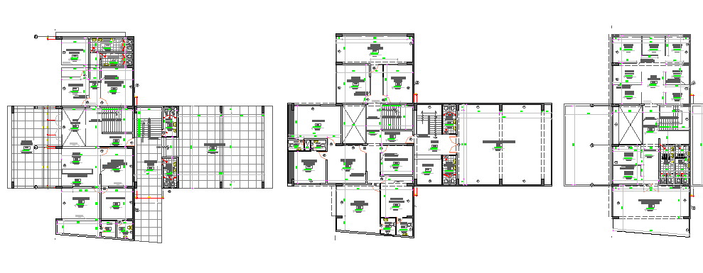
Ground, first and top floor layout plan of medical hospital dwg file

Ground, first and top floor layout plan of medical hospital dwg file
Profile

Uploaded by:

Vaishali

Description
Explore detailed ground, first, and top floor layout plans of a medical hospital in DWG format—ideal for architects and healthcare building design.
Profile

Uploaded by:

Vaishali

find Latest

Related Files

WhatsApp Chat