LOGIN
HOME
CATEGORIES
UPLOAD FILE
PRICING
HOUSE PLAN
ABOUT US
CONTACT US
corporate building layout dwg file
Home
Categories
Architecture
Corporate Building
corporate building layout dwg file
Uploaded by:
Dipika
View Profile
View Profile
Description
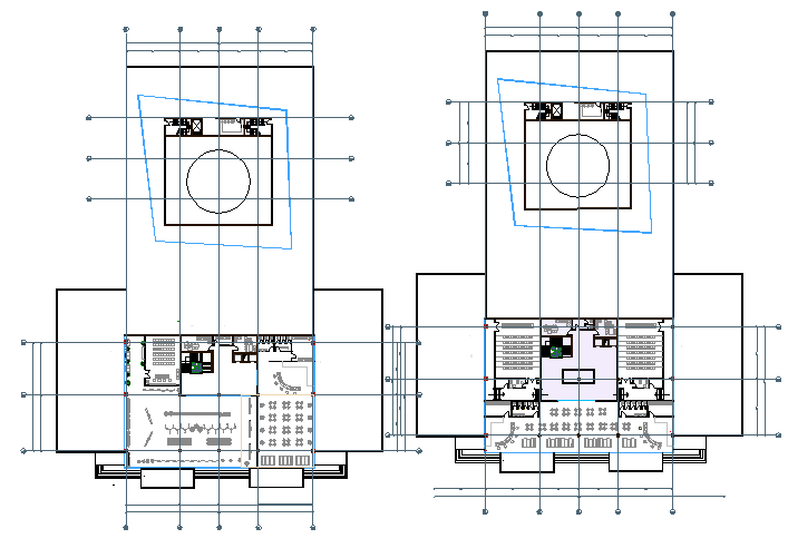
corporate building layout dwg file, here there is a layout plan of a corporate building, furniture details, where there is banquet, auditorium , dining area
File Type:
3d max
File Size:
3.2 MB
Category::
Architecture
Sub Category::
Corporate Building
type:
Free
Uploaded by:
Dipika
View Profile
Download
Add to libary
find Latest
Related
Files