Single family house architecture layout plan details dwg file
Description
Single family house architecture layout plan details dwg file.
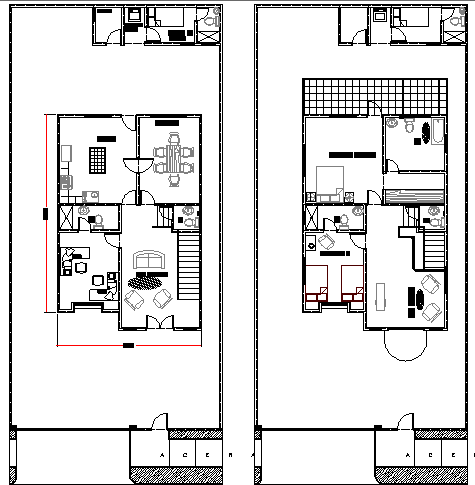
Single family house architecture layout plan details that includes a detailed view of main entry door, family hall, kitchen, living room, dining area, laundry area, bedroom, master bedroom, toilet and bathroom, terrace and much more of single family house details.
Uploaded by:

