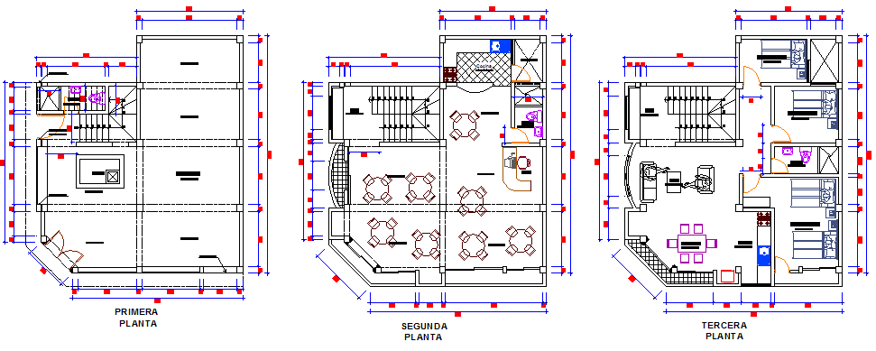
Multi-flooring residential bungalow floor plan details dwg file
Description
Multi-flooring residential bungalow floor plan details dwg file.
Multi-flooring residential bungalow floor plan details that includes a detailed view of ground floor, first floor, top floor, main entry door, family hall, living room, kitchen, dining area, bedroom, master bedroom, indoor cafeteria, terrace, toilets and bathroom and much more of bungalow details.
Uploaded by:

